+420 776 617 670

Apartment reconstruction project for long-term rental

modern kitchen with wooden decor and white cabinets
bright room after renovation ready for rent
corridor with built-in wardrobe after reconstruction
small washbasin with mirror and light above
toilet with bidet shower and niche shelf
utility room with washing machine and boiler after reconstruction
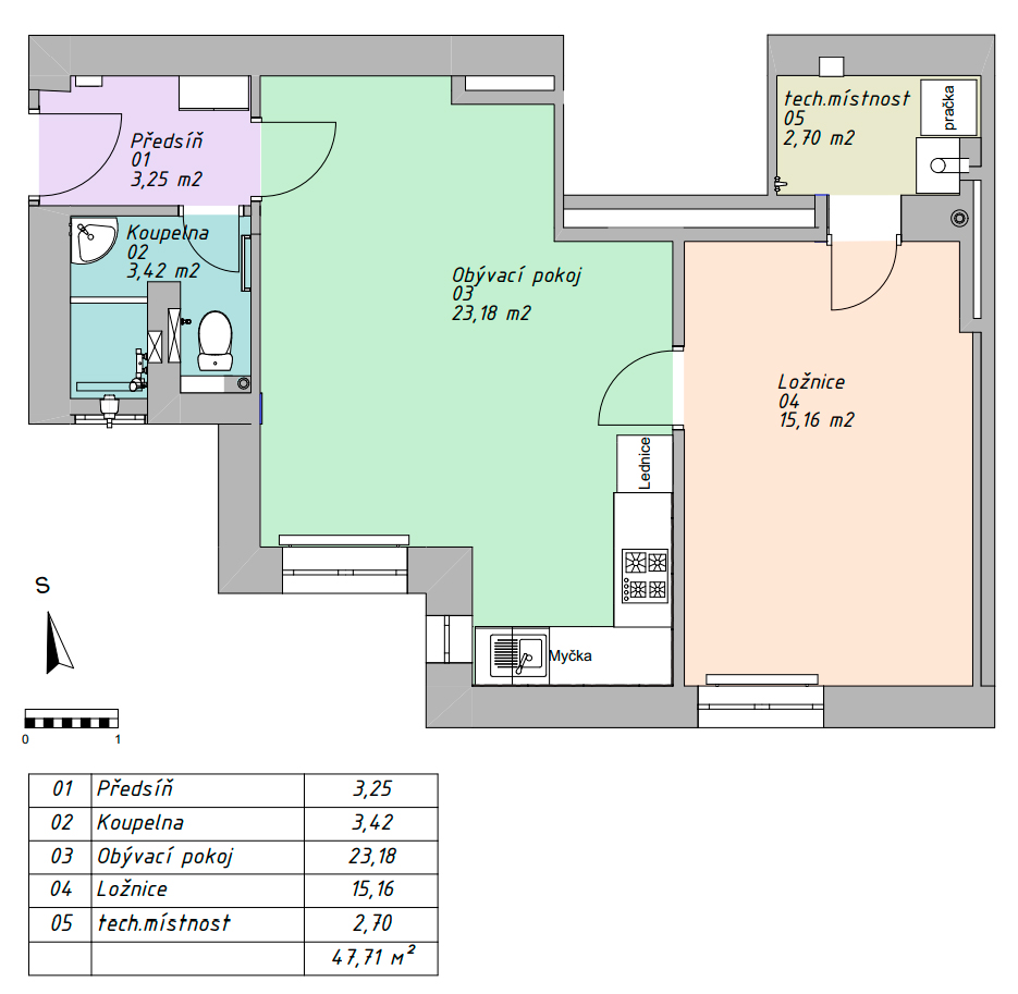
floor plan of the apartment after reconstruction 2+kk

Turning an older property into a modern investment apartment

The complete reconstruction of a 2+kk investment apartment in Prague was aimed at creating a modern, durable and timeless interior for long-term rental.
The original layout no longer met the current requirements of the tenants, so we demolished partitions, modified the wiring and designed a new layout: living room with kitchen, bedroom, bathroom and utility room with washing machine and boiler.
Thanks to this, the comfort, practicality and value of the property for rental increased.

Investment apartment design with emphasis on functionality and aesthetics

The project was conceived from the outset as an investment renovation – with an emphasis on longevity, ease of maintenance and a versatile look.
We used bright neutral colours, durable materials and modern LED lighting. We designed the kitchen as the dominant feature of the interior – with a combination of white cabinets and woodgrain.
The result is a modern interior that feels cosy, clean and appeals to a wide range of tenants.

Efficient layout and technical solutions

The renovation included a utility room with washing machine and boiler, shower room with window and full new lighting.
The whole apartment is designed to be practical, economical and easy to maintain – ideal for an investment apartment for rent.

The result – an apartment that earns

Upon completion of the project, the apartment was created for long-term rental and quickly rented out at an above-average price.
The interior is timeless, cost-effective and fully meets the requirements of today’s tenants.
It confirms that a well-designed investment apartment is an investment with a real return and minimal maintenance concerns.

Key benefits of the project

  • Higher value and rental yield

  • Modern layout and functional solutions

  • Durable, easy-care materials

  • Universal look suitable for every tenant

  • Energy saving LED lighting and utility room

  • Fast occupancy and long-term payback

Are you considering investing in real estate?

We will design an interior that will be attractive to tenants and profitable for you.

Váš interiér navrhne zkušený bytový designér, který promění vaše představy v promyšlený a funkční návrh interiéru – ať už jde o celý byt, nebo jen konkrétní prostor, například kuchyň, ložnici, obývací pokoj, dětský pokoj či pracovnu.

Jedná se o rekonstrukci nebo novostavbu? Zajistíme kompletní proces – od tvorby návrhu interiéru a přípravy technické dokumentace až po samotnou realizaci, výběr vybavení a řízení dodavatelů.

Chcete mít jistotu, že výsledek bude přesně odpovídat projektu? Náš bytový architekt dohlédne na průběh realizace a postará se, aby vše proběhlo kvalitně, efektivně a bez starostí z vaší strany.

The design includes a marble countertop in the kitchen, which highlights the luxurious atmosphere of the interior. The architect has chosen light shades and minimalist furniture to achieve a feeling of spaciousness and cosiness.
The design of the vestibule in the family house is an example of modern minimalist aesthetics that fits perfectly into the overall design of the house. The bespoke hallway wall harmonises with the elegant staircase, creating a welcoming and cohesive space.