+420 776 617 670

Ukázky našich projektů

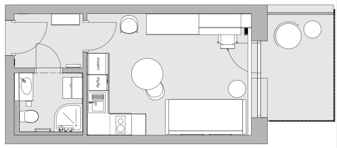
Projektová dokumentace pro rekonstrukci s přestavbou - byt 2kk 48m2 (výkresová čast)

Návrh interiéru - přízemí RD - 54m2 (dispoziční a stylové řešení)

Prezentace dispozičního řešení - půdorys

image

3D prezentace dispozičního řešení